Prodej bytu 1+kk
Žacléř
4 086 800 Kč
Cena včetně právních služeb, úschovy peněz a provize RK
| Kód nabídky | N66709 |
|---|---|
| Dispozice bytu | 1+kk |
| Druh stavby | Cihlová |
| Celková plocha | 44 m2 |
| Užitná plocha | 44 m2 |
| Stav objektu | Velmi dobrý |
| Typ domu | Patrový |
| Číslo podlaží | 2 |
| Počet podlaží | 3 |
| Vlastnictví | Osobní |
| Balkon | 7 m2 |
| Sklep | 2.3 m2 |
| K dispozici od | 26.3.2026 |
| PENB: Náročnost budovy | G - průkaz nedodán |
Popis
Z obýváku přímo na sjezdovku! Stylový apartmán 1+kk (36,8 m²) s balkonem (7 m²), sklepem a parkováním – Prkenný Důl
Hledáte místo, kde ranní kávu vypijete s výhledem na zasněžené svahy a hned poté nasadíte lyže přímo u domu? Tento precizně udržovaný apartmán v žádané lokalitě Žacléř – Prkenný Důl je přesně pro vás. Kromě ideálního rekreačního zázemí se jedná o výjimečnou investiční příležitost: při realistickém průměru se roční hrubý příjem z krátkodobého pronájmu pohybuje mezi 280 000 – 340 000 Kč.
Hlavní přednosti a lyžařský ráj na dosah:
• Ski-in/Ski-out přímo v místě: Bydlíte přímo u sjezdovek areálů Bret a Arakis, které jsou v docházkové vzdálenosti od domu.
• Největší resort v ČR za rohem: Pokud zatoužíte po nejdelších sjezdovkách v Česku, do Janských Lázní (SkiResort Černá hora) dojedete autem za pouhých 20–25 minut (cca 18 km). Máte tak na výběr mezi klidem v Prkenném Dole a špičkovým zázemím největšího skiareálu v zemi.
• Unikátní parkování: K bytu náleží vlastní parkovací stání přímo u budovy – maximální komfort i v zimních měsících.
• Vybavení a bonus: Vestavěný nábytek je součástí ceny. Jako bonus může prodávající ponechat zbylé vybavení kupujícímu zdarma, nebo zajistí jeho vystěhování.
• Budoucí zhodnocení: Probíhá dostavba dálnice D11 (Praha – Trutnov – Polsko) s plánovaným dokončením cca 2027–2028, která výrazně zlepší dostupnost oblasti a zvýší hodnotu nemovitosti.
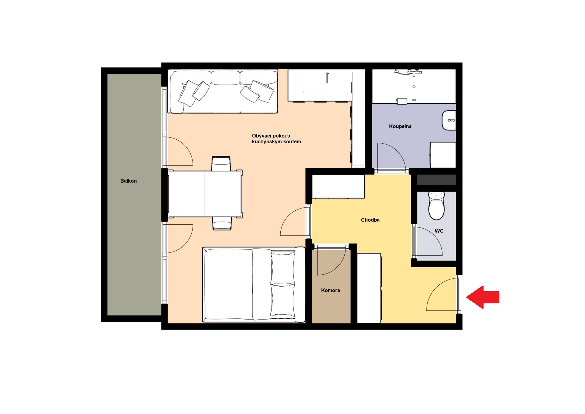
Dispozice a parametry (celkem 36,8 m² + balkon 7 m²):
Byt se nachází v moderním apartmánovém domě (rok výstavby 2009) a je ve vynikajícím stavu:
• Obývací pokoj s kuchyňským koutem (22,14 m²): Plně vybavená linka se sklokeramickou deskou, dřezem, lednicí, mrazákem a mikrovlnkou.
• Slunný balkon (7 m²): Ideální pro letní posezení nebo zimní relaxaci s výhledem na přírodu.
• Koupelna (4,37 m²): Vana, otopný žebřík a místo na pračku.
• Praktické zázemí: Samostatné WC (1,44 m²), chodba se dvěma velkými vestavěnými skříněmi (7,32 m²) a komora (1,53 m²) s vlastním kotlem a bojlerem Dražice.
• Příslušenství: Sklepní kóje (2,3 m²) pro bezpečné uložení lyží a kol.
Lokalita a investiční potenciál:
Prkenný Důl je vstupní branou do východních Krkonoš, nabízející klidnou atmosféru, tenisové kurty i wellness. Apartmán je ideální jako „druhý domov“ i jako výnosná investice. Díky poloze přímo u sjezdovky a celoroční atraktivitě lokality (lyžování, cykloturistika, turistika) dosahuje nemovitost hrubé výtěžnosti cca 7,8 % (při ceně 4 100 000 Kč). Čistý roční zisk po odečtení všech provozních nákladů se odhaduje na 150 000 – 190 000 Kč, což představuje čistý výnos kolem 4,5 % ročně.
Přijeďte se přesvědčit osobně!
Nemovitost je možné financovat hypotékou – zajistíme nejvýhodnější podmínky na trhu. Rádi vám také pomůžeme s prodejem vaší stávající nemovitosti.
Hledáte místo, kde ranní kávu vypijete s výhledem na zasněžené svahy a hned poté nasadíte lyže přímo u domu? Tento precizně udržovaný apartmán v žádané lokalitě Žacléř – Prkenný Důl je přesně pro vás. Kromě ideálního rekreačního zázemí se jedná o výjimečnou investiční příležitost: při realistickém průměru se roční hrubý příjem z krátkodobého pronájmu pohybuje mezi 280 000 – 340 000 Kč.
Hlavní přednosti a lyžařský ráj na dosah:
• Ski-in/Ski-out přímo v místě: Bydlíte přímo u sjezdovek areálů Bret a Arakis, které jsou v docházkové vzdálenosti od domu.
• Největší resort v ČR za rohem: Pokud zatoužíte po nejdelších sjezdovkách v Česku, do Janských Lázní (SkiResort Černá hora) dojedete autem za pouhých 20–25 minut (cca 18 km). Máte tak na výběr mezi klidem v Prkenném Dole a špičkovým zázemím největšího skiareálu v zemi.
• Unikátní parkování: K bytu náleží vlastní parkovací stání přímo u budovy – maximální komfort i v zimních měsících.
• Vybavení a bonus: Vestavěný nábytek je součástí ceny. Jako bonus může prodávající ponechat zbylé vybavení kupujícímu zdarma, nebo zajistí jeho vystěhování.
• Budoucí zhodnocení: Probíhá dostavba dálnice D11 (Praha – Trutnov – Polsko) s plánovaným dokončením cca 2027–2028, která výrazně zlepší dostupnost oblasti a zvýší hodnotu nemovitosti.
Dispozice a parametry (celkem 36,8 m² + balkon 7 m²):
Byt se nachází v moderním apartmánovém domě (rok výstavby 2009) a je ve vynikajícím stavu:
• Obývací pokoj s kuchyňským koutem (22,14 m²): Plně vybavená linka se sklokeramickou deskou, dřezem, lednicí, mrazákem a mikrovlnkou.
• Slunný balkon (7 m²): Ideální pro letní posezení nebo zimní relaxaci s výhledem na přírodu.
• Koupelna (4,37 m²): Vana, otopný žebřík a místo na pračku.
• Praktické zázemí: Samostatné WC (1,44 m²), chodba se dvěma velkými vestavěnými skříněmi (7,32 m²) a komora (1,53 m²) s vlastním kotlem a bojlerem Dražice.
• Příslušenství: Sklepní kóje (2,3 m²) pro bezpečné uložení lyží a kol.
Lokalita a investiční potenciál:
Prkenný Důl je vstupní branou do východních Krkonoš, nabízející klidnou atmosféru, tenisové kurty i wellness. Apartmán je ideální jako „druhý domov“ i jako výnosná investice. Díky poloze přímo u sjezdovky a celoroční atraktivitě lokality (lyžování, cykloturistika, turistika) dosahuje nemovitost hrubé výtěžnosti cca 7,8 % (při ceně 4 100 000 Kč). Čistý roční zisk po odečtení všech provozních nákladů se odhaduje na 150 000 – 190 000 Kč, což představuje čistý výnos kolem 4,5 % ročně.
Přijeďte se přesvědčit osobně!
Nemovitost je možné financovat hypotékou – zajistíme nejvýhodnější podmínky na trhu. Rádi vám také pomůžeme s prodejem vaší stávající nemovitosti.
Lokalita
Žacléř