Pronájem komerčního prostoru
Praha 5 - Strakonická
15 EUR
za m2/měsíc
| Kód nabídky | N66492 |
|---|---|
| Druh prostor | Kancelář |
| Druh stavby | Smíšená |
| Užitná plocha | 109 m2 |
| Stav objektu | Novostavba |
| Typ domu | Patrový |
| Plocha prostor | 109 m2 |
| K dispozici od | 1.3.2026 |
| PENB: Náročnost budovy | A - Mimořádně úsporná |
Popis
Soccer reality zprostředkuje k pronájmu exkluzivní kancelářské prostory v nově vzniklém administrativním komplexu RIVER BRIDGE OFFICE HUB. Tento moderní kancelářský areál se nachází v žádané lokalitě Prahy 5, přímo na Strakonické ulici.
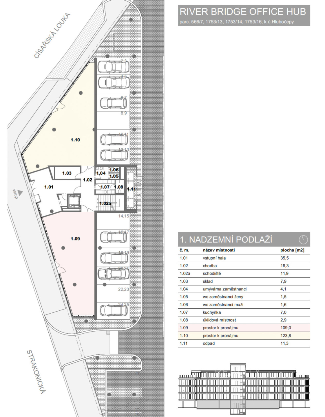
K dispozici jsou kancelářské prostory v 1. NP o velikosti 123,8 m2 a 109 m2. Prostory budou dokončené ve stavu shell&core, což nabízí skvělou příležitost vytvořit si pracovní prostředí přesně podle svých představ.
Každou jednotku lze pronajmout samostatně, případně využít celý prostor 232,8 m² jako soukromé patro pro váš tým.
K nastěhování od 1.3. 2026
Cena nájemného:
Prvních 9 měsíců = 7,99 EUR/m2 (bez vnitřního vybavení)
Prvních 3 měsíců = 7,99 EUR/m2 (se základním vnitřním vybavením (podlahová krytina, osvětlení)
Plné nájemné = 14,99 EUR/m2
Služby = 140 Kč/m2
Sociální zázemí 66m2 = zdarma
Parkovné:
- krytá parkovací stání pod budovou €115/měsíc
- venkovní parkovací stání €85/měsíc
- parkovací stání za mostem 1.010Kč/měsíc
River Bridge Office Hub nabízí moderní pracovní prostředí v jedné z nejžádanějších pražských lokalit s výbornou dopravní dostupností a širokým zázemím služeb.
Zaujala vás nabídka? Zavolejte nebo napište – rád vám prostor osobně představím.
K dispozici jsou kancelářské prostory v 1. NP o velikosti 123,8 m2 a 109 m2. Prostory budou dokončené ve stavu shell&core, což nabízí skvělou příležitost vytvořit si pracovní prostředí přesně podle svých představ.
Každou jednotku lze pronajmout samostatně, případně využít celý prostor 232,8 m² jako soukromé patro pro váš tým.
K nastěhování od 1.3. 2026
Cena nájemného:
Prvních 9 měsíců = 7,99 EUR/m2 (bez vnitřního vybavení)
Prvních 3 měsíců = 7,99 EUR/m2 (se základním vnitřním vybavením (podlahová krytina, osvětlení)
Plné nájemné = 14,99 EUR/m2
Služby = 140 Kč/m2
Sociální zázemí 66m2 = zdarma
Parkovné:
- krytá parkovací stání pod budovou €115/měsíc
- venkovní parkovací stání €85/měsíc
- parkovací stání za mostem 1.010Kč/měsíc
River Bridge Office Hub nabízí moderní pracovní prostředí v jedné z nejžádanějších pražských lokalit s výbornou dopravní dostupností a širokým zázemím služeb.
Zaujala vás nabídka? Zavolejte nebo napište – rád vám prostor osobně představím.
Lokalita
Praha 5 - Strakonická