Prodej bytu 1+kk
Praha 15 - Hornoměcholupská
5 100 000 Kč
včetně provize RK
| Kód nabídky | N66102 |
|---|---|
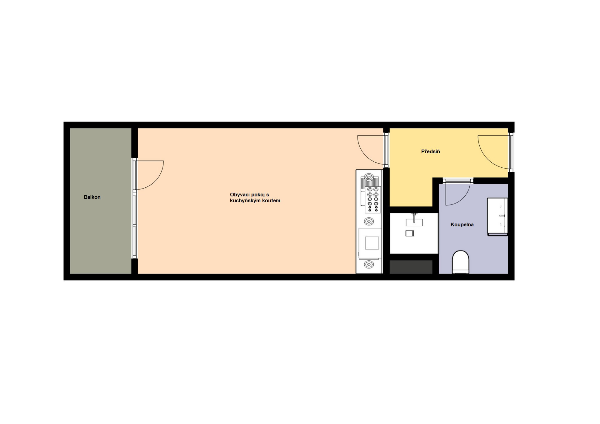
| Dispozice bytu | 1+kk |
| Druh stavby | Cihlová |
| Celková plocha | 35 m2 |
| Užitná plocha | 26 m2 |
| Stav objektu | Novostavba |
| Typ domu | Patrový |
| Číslo podlaží | 2 |
| Počet podlaží | 5 |
| Vlastnictví | Osobní |
| Balkon | 5 m2 |
| Sklep | 4 m2 |
| K dispozici od | 13.10.2025 |
| Umístění objektu | Klidná část obce |
| Popis vybavení | Kuchyňská linka, lednice, elektrická trouba, keramická varná deska, pračka, balkon, sklep |
| PENB: Náročnost budovy | C - Úsporná |
Popis
Prodej hezkého bytu 1+kk/B/S, 26 m2, Praha 10 - Horní Měcholupy, Hornoměcholupská
Hledáte vlastní dostupné bydlení v novostavbě? Toužíte po balkonu? Oceníte sklep?
Soccer Reality vám nabízí útulný byt, který se nachází ve 2. nadzemním podlaží moderní novostavby od CENTRAL GROUP v oblíbené Javorové čtvrti v Praze 10 – Horních Měcholupech. Byt se pyšní výhodnou polohou s výhledem do klidné části projektu, příjemnou východní orientací a balkonem o velikosti 5 m², ideálním pro ranní kávu nebo chvíle odpočinku.
Hlavní výhody: zateplený plášť budovy, plastová okna s izolačními dvojskly, centrální dálkové vytápění, bezpečnostní dveře NEXT, datové rozvody pro internet, praktická kuchyňská linka se spotřebiči, hezká laminátová plovoucí podlaha. V chodbě je praktická skříň. Koupelna je vybavena sprchovým koutem, pračkou a žebříčkovým radiátorem.
V ceně bytu je navíc vlastní uzamykatelný sklep (3,7 m2), ideální na uskladnění kol, lyží, nářadí, pneumatik a všeho ostatního.
Lokalita má vynikající dopravní dostupnost MHD. Na metro C – Háje a metro A – Strašnickou a Skalku jezdí autobusy 183, 154 a 175.
Veškerá občanská vybavenost je v místě. Kaufland, Retail Park. Dostatek zeleně, hřišť a sportovišť naleznete u blízké Hostivařské přehrady. Dostatek parkovacích míst je přímo u domu.
Prohlídky a rezervace jsou možné ihned.
Hledáte vlastní dostupné bydlení v novostavbě? Toužíte po balkonu? Oceníte sklep?
Soccer Reality vám nabízí útulný byt, který se nachází ve 2. nadzemním podlaží moderní novostavby od CENTRAL GROUP v oblíbené Javorové čtvrti v Praze 10 – Horních Měcholupech. Byt se pyšní výhodnou polohou s výhledem do klidné části projektu, příjemnou východní orientací a balkonem o velikosti 5 m², ideálním pro ranní kávu nebo chvíle odpočinku.
Hlavní výhody: zateplený plášť budovy, plastová okna s izolačními dvojskly, centrální dálkové vytápění, bezpečnostní dveře NEXT, datové rozvody pro internet, praktická kuchyňská linka se spotřebiči, hezká laminátová plovoucí podlaha. V chodbě je praktická skříň. Koupelna je vybavena sprchovým koutem, pračkou a žebříčkovým radiátorem.
V ceně bytu je navíc vlastní uzamykatelný sklep (3,7 m2), ideální na uskladnění kol, lyží, nářadí, pneumatik a všeho ostatního.
Lokalita má vynikající dopravní dostupnost MHD. Na metro C – Háje a metro A – Strašnickou a Skalku jezdí autobusy 183, 154 a 175.
Veškerá občanská vybavenost je v místě. Kaufland, Retail Park. Dostatek zeleně, hřišť a sportovišť naleznete u blízké Hostivařské přehrady. Dostatek parkovacích míst je přímo u domu.
Prohlídky a rezervace jsou možné ihned.
Lokalita
Praha 15 - Hornoměcholupská